A total of 8 units Double Storey Semi-Detached House at Picasson Villa by Oxrich Garden Sdn Bhd (A company holly owned by Sin Siang Hai Sdn Bhd).

The building is built with Reinforced Concrete Structure using bun clay brick and the following specs:
- Gypsum Plastered Ceiling to all, UAC Superflex ceiling to all Roof eaves
- Clip Deck Metal grey colour Roofing Sheet
- White Powder Coated Aluminium Frame with Clear Glass Window and Custommade
- Veneer Decorative door with Quality Iron Mongery
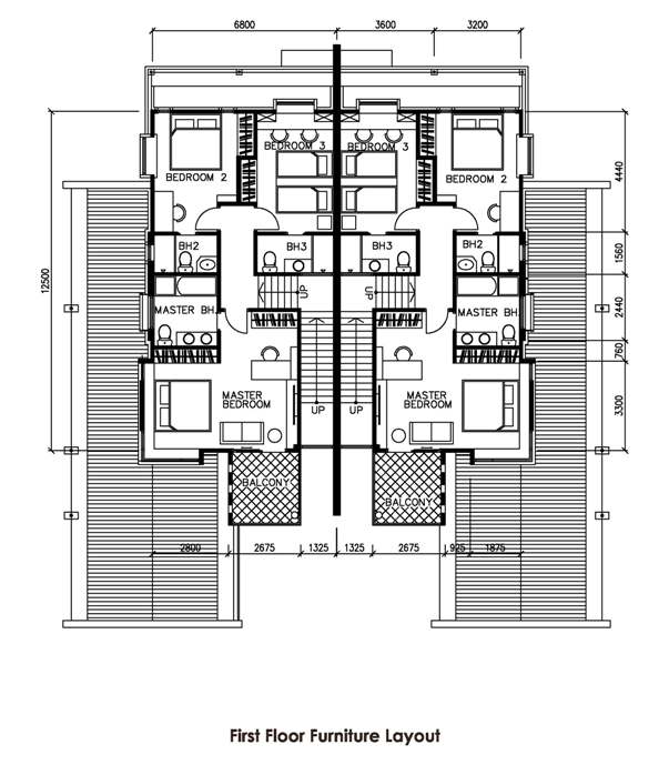
Ground Floor plan and First Floor Plan:



Location Map of Picasso Villa







